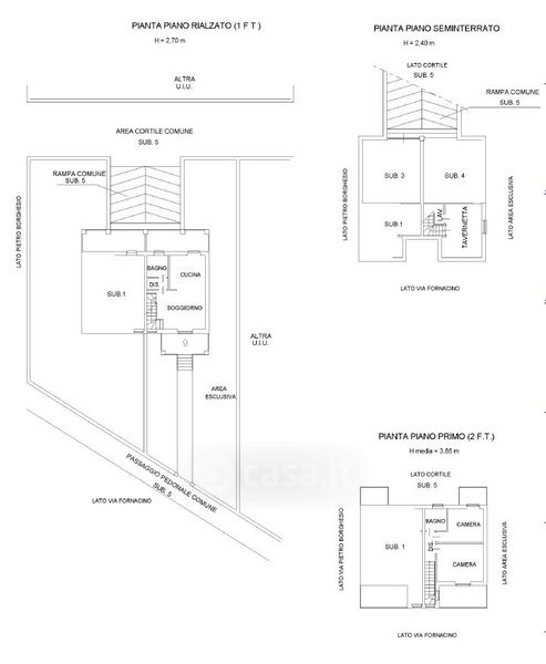
Villetta a schiera in vendita Via Pietro Borghesio 77, Leini
Salva
Casa.it
1/28
  • Street View
  • Map