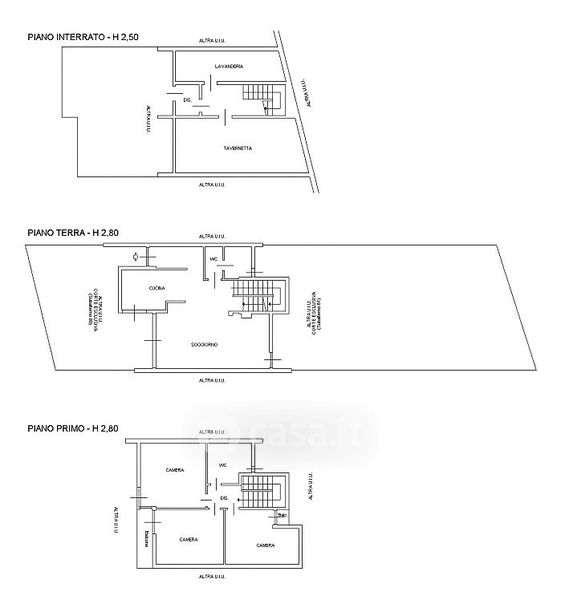
Villetta a schiera in vendita Via Giacomo Ferrero 9, Sant'Ambrogio di Torino
Salva
Casa.it
1/19
  • Street View
  • Map