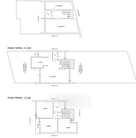
Villetta a schiera in vendita Via Giacomo Ferrero , Sant'Ambrogio di Torino
Salva
Casa.it
1/13
  • Street View
  • Map