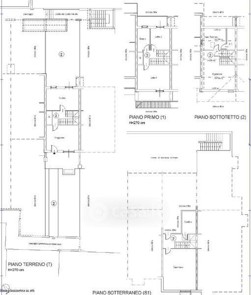
Villetta a schiera in vendita Via Belvedere 76 -54, Trofarello
Salva
Casa.it
1/26
  • Street View
  • Map