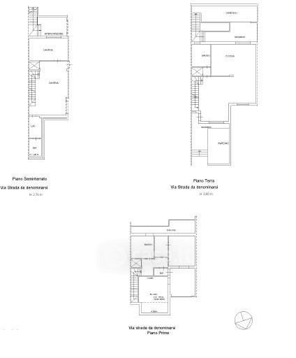
Villetta a schiera in affitto Via Pietro Fransvea 8, Bari
Salva
Casa.it
1/32
  • Street View
  • Map