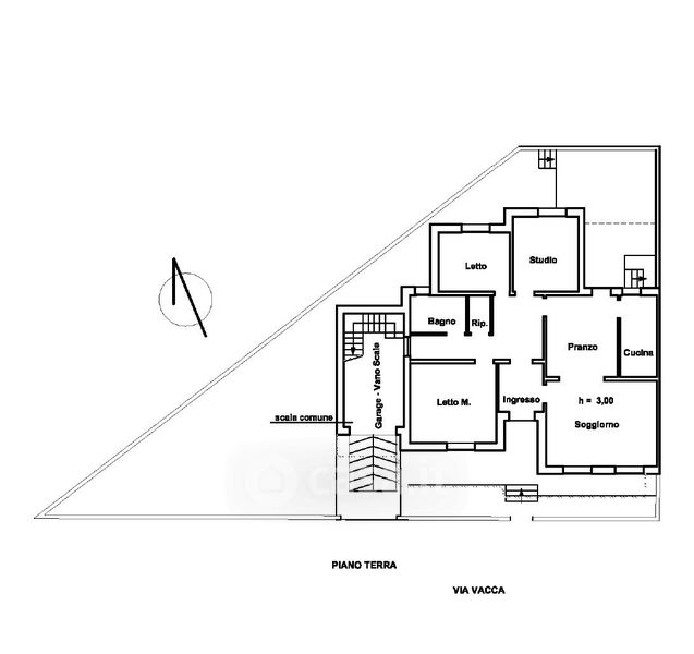
Villetta a schiera in vendita Via Nicola Vacca , Nardò
Salva
Casa.it
1/20
  • Street View
  • Map