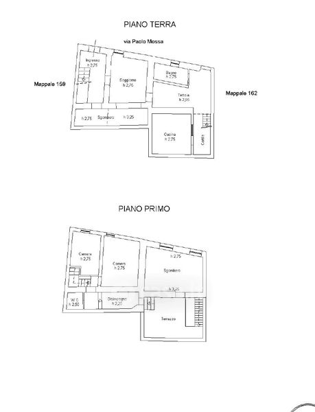
Villetta a schiera in vendita Via Paolo Mossa , Padria
Salva
Casa.it
1/56
  • Street View
  • Map