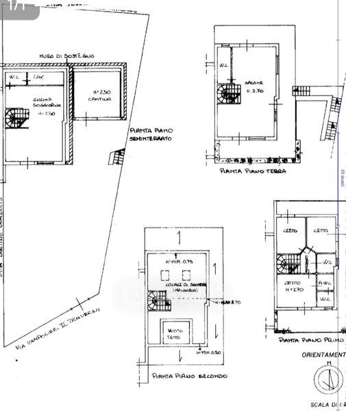
Villetta a schiera in vendita Via Vampolieri , Aci Castello
Salva
Casa.it
1/43
  • Street View
  • Map