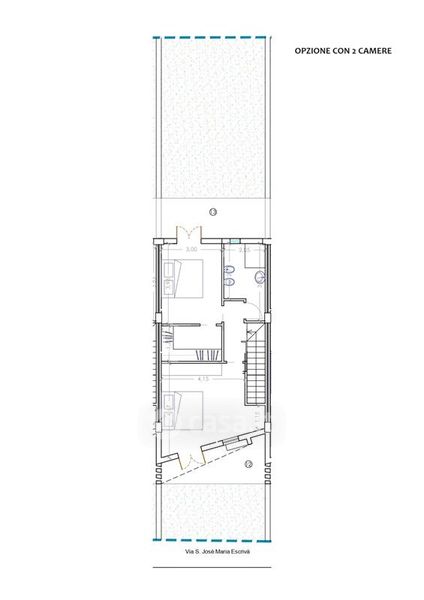
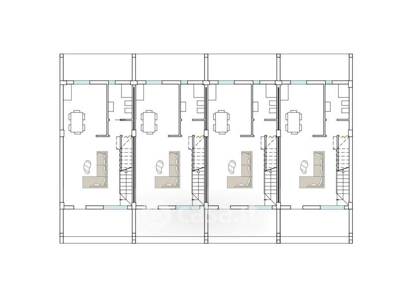
Villetta a schiera in vendita Via Josèmaria Escrivá , Terrasini
Salva
Casa.it
1/30
  • Street View
  • Map