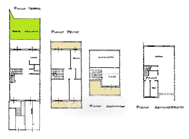
Villetta a schiera in vendita Via Fratelli Rosselli 29, Calenzano
Salva
Casa.it
1/45
  • Street View
  • Map