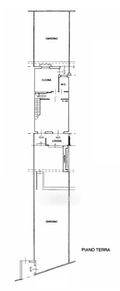
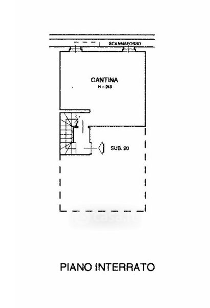
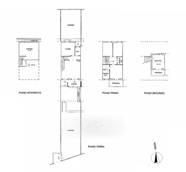
Villetta a schiera in vendita Via dei Campi Lunghi , Firenze
Salva
Casa.it
1/54
  • Street View
  • Map