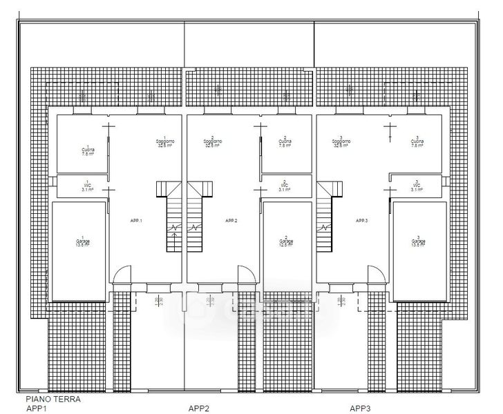
Villetta a schiera in vendita Via peru , Grosseto
Salva
Casa.it
1/7
  • Street View
  • Map