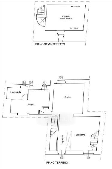
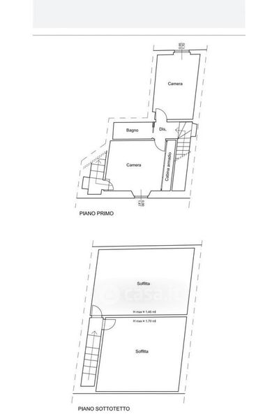
Villetta a schiera in vendita Via San Isidoro , Impruneta
Salva
Casa.it
1/25
  • Street View
  • Map