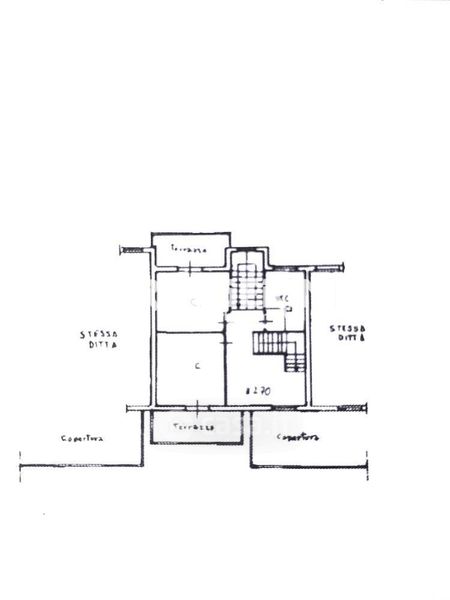
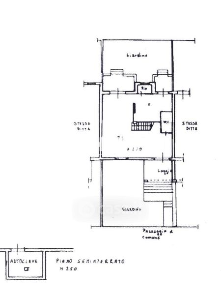
Villetta a schiera in vendita Via Numa Campi , Livorno
Salva
Casa.it
1/44
  • Street View
  • Map