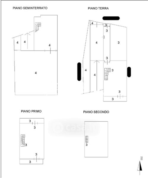
Villetta a schiera in vendita Via Ugo Foscolo , Montale
Salva
Casa.it
1/26
  • Street View
  • Map