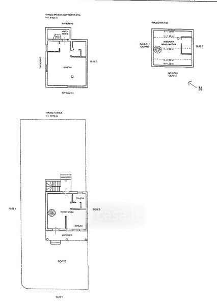
Villetta a schiera in vendita SP13 , Podenzana
Salva
Casa.it
1/12
  • Street View
  • Map