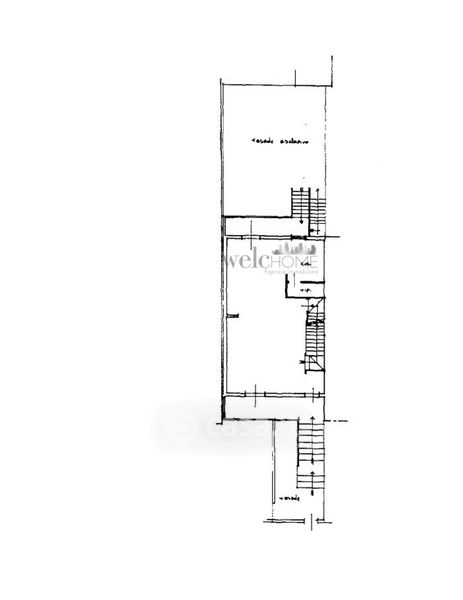
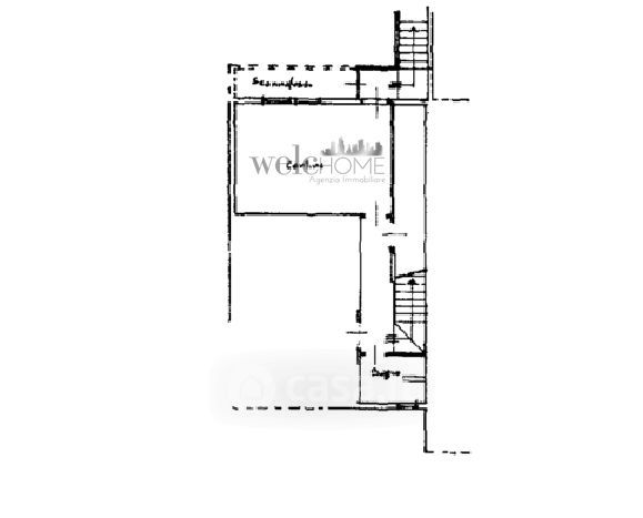
Villetta a schiera in vendita Via Italia '61 , Poggio a Caiano
Salva
Casa.it
1/42
  • Street View
  • Map