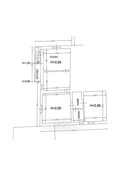
Villetta a schiera in vendita Via di Baccio San Martino a Ulmiano , San Giuliano Terme
Salva
Casa.it
1/17
  • Street View
  • Map