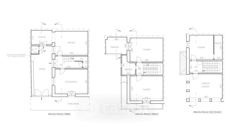
Villetta a schiera in vendita Via Silvio Pellico , Viareggio
Salva
Casa.it
1/59
  • Street View
  • Map