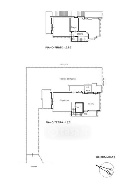
Villetta a schiera in vendita Via Aurelia Sud 360, Viareggio
Salva
Casa.it
1/57
  • Street View
  • Map