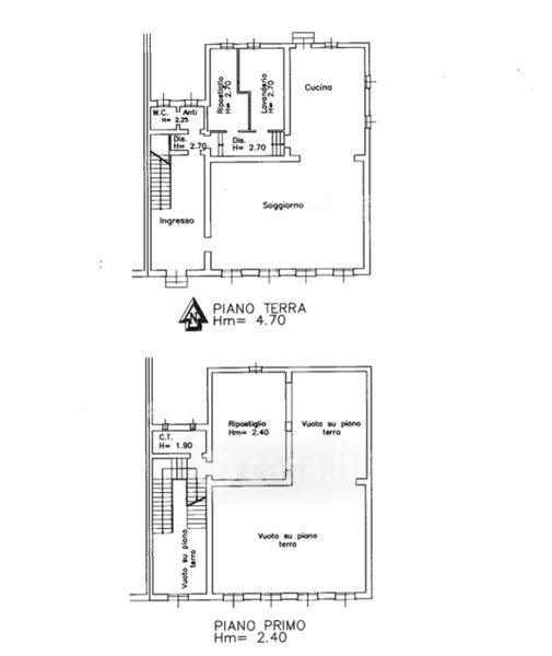
Villetta a schiera in vendita Via San Michele 10, Altivole
Salva
Casa.it
1/41
  • Street View
  • Map