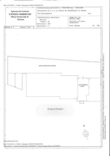
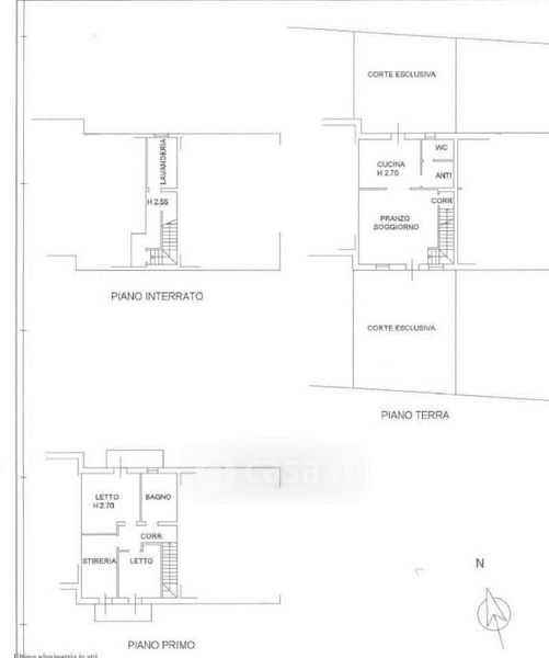
Villetta a schiera in vendita Via Risorgimento , Castelnuovo del Garda
Salva
Casa.it
1/20
  • Street View
  • Map