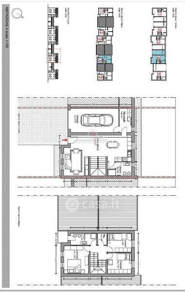
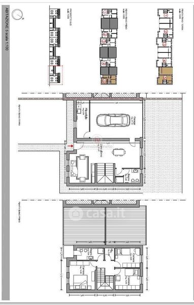
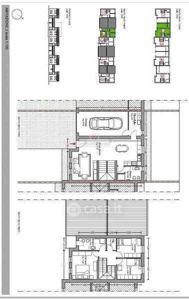
Villetta a schiera in vendita Via Roma 52, Gambellara
Salva
Casa.it
1/9
  • Street View
  • Map