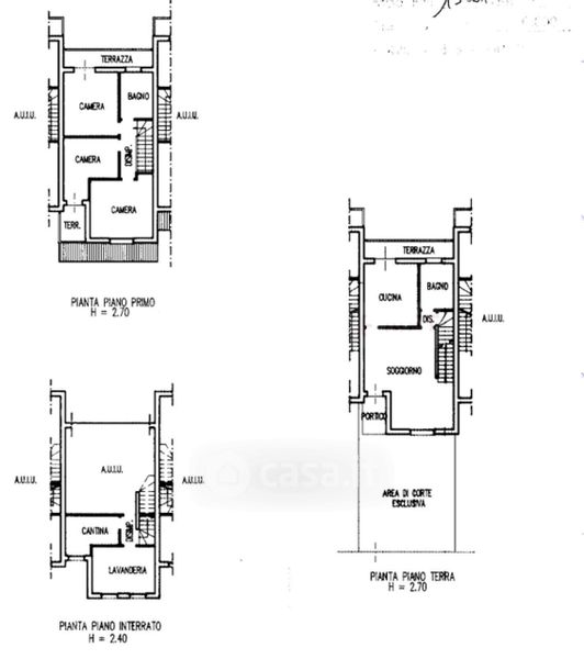
Villetta a schiera in vendita Via Marianna Cita 49, Montecchio Precalcino
Salva
Casa.it
1/29
  • Street View
  • Map