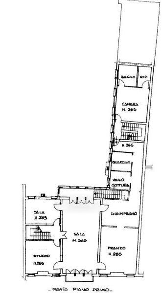
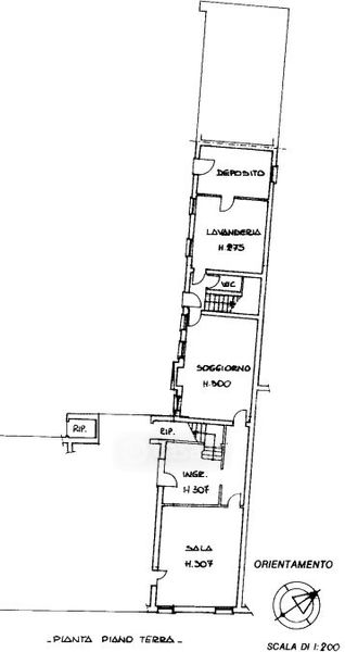
Villetta a schiera in vendita Via Giuseppe Garibaldi 82, Oderzo
Salva
Casa.it
1/15
  • Street View
  • Map