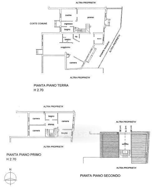
Villetta a schiera in vendita Piazzale Porta San Giovanni , Padova
Salva
Casa.it
1/27
  • Street View
  • Map