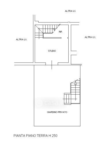
Villetta a schiera in vendita Via Ponte della Cagna , Padova
Salva
Casa.it
1/34
  • Street View
  • Map