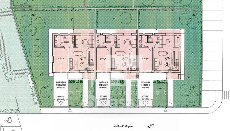
Villetta a schiera in vendita Via Don Giovanni Capoia , Paese
Salva
Casa.it
1/16
  • Street View
  • Map