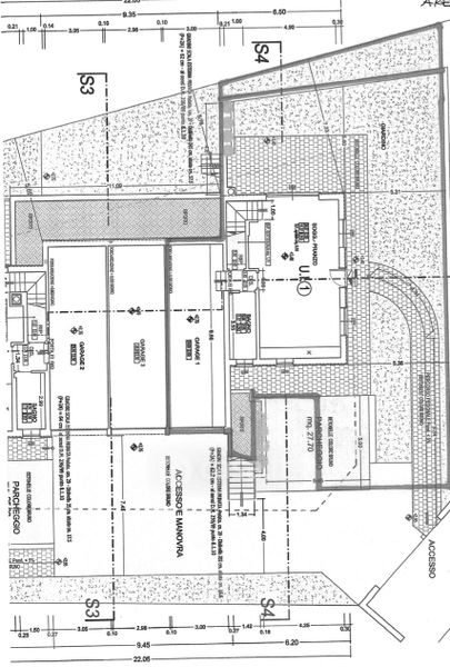
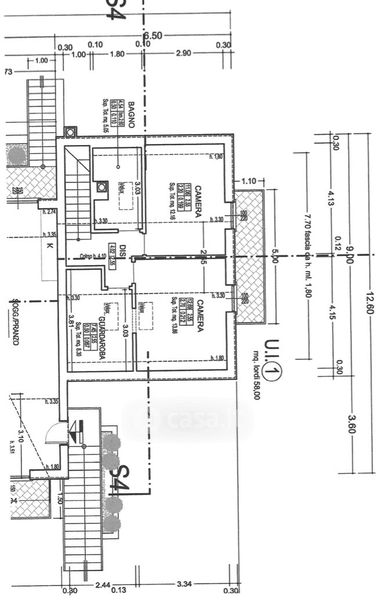
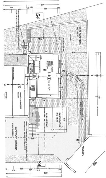
Villetta a schiera in vendita Via Holl , Roana
Salva
Casa.it
1/43
  • Street View
  • Map