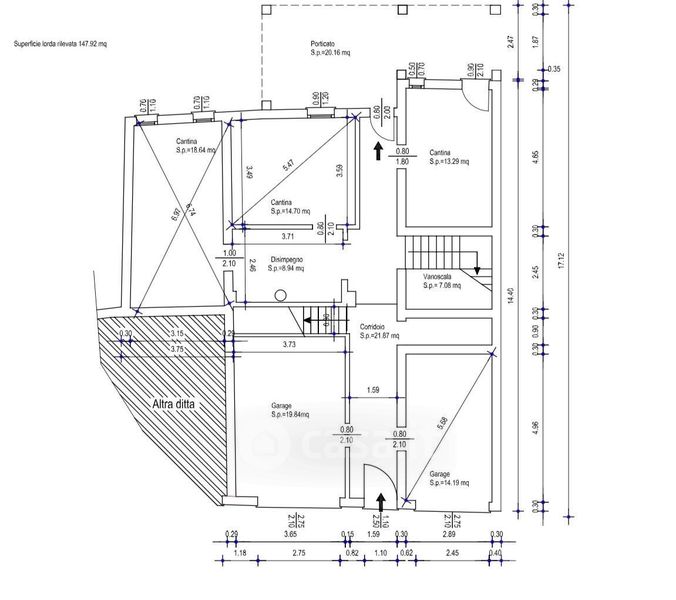
Villetta a schiera in vendita Via Samuele Donatoni 18, Rovigo
Salva
Casa.it
1/6
  • Street View
  • Map