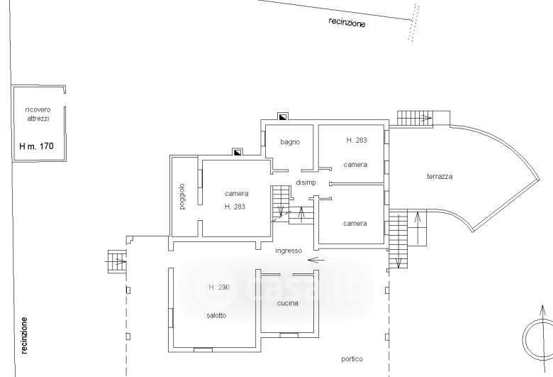
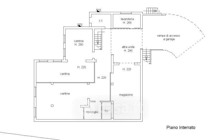
Villetta a schiera in vendita Via Spinea , Spinea
Salva
Casa.it
1/17
  • Street View
  • Map