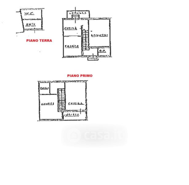
Villetta a schiera in vendita Via Molino 37, Torre di Mosto
Salva
Casa.it
1/24
  • Street View
  • Map