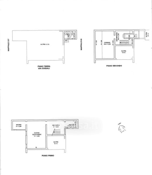
Villetta a schiera in vendita Via Pietro Cossali , Verona
Salva
Casa.it
1/38
  • Street View
  • Map