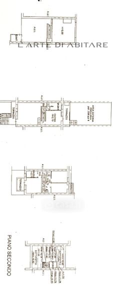
Villetta a schiera in vendita Via Gerardo Maurisio 76, Vicenza
Salva
Casa.it
1/37
  • Street View
  • Map