Appartamento in vendita Viale Emilia , Cervia
Pinarella99mq
3locali

CERVIA - PINARELLA
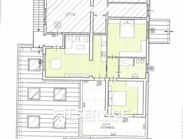
In vendita a Pinarella di Cervia, in posizione privilegiata a pochi passi dal mare, proponiamo un appartamento al primo ed ultimo piano con ingresso indipendente, perfetto per chi cerca una soluzione comoda, riservata e vicina alla spiaggia.
L’immobile è composto da un ampio e luminoso soggiorno con cucinotto abitabile. Tramite disimpegno accediamo alle due camere da letto matrimoniali e un bagno finestrato.
Punto di forza della proprietà è uno splendido terrazzo di 26 mq, ideale per cene all’aperto, momenti di relax o per vivere l’esterno in totale privacy.
Completano la soluzione un posto auto privato.
La consegna è prevista entro fine 2025, con una completa ristrutturazione dell’immobile e finiture di alta qualità, pensate per garantire comfort e stile.
La posizione è davvero strategica a pochi metri dal mercato settimanale, dalle fermate dell’autobus e da tutte le principali attività commerciali.
Un’ottima soluzione per vivere il mare tutto l’anno o come investimento per le vacanze.
L’immobile è ideale sia come abitazione principale che come casa vacanza.
Per maggiori informazioni:
Marco Arlotti | Tel. | email:....
Aggiornato il 13 Aprile 2026Scrivi qui le tue note private sull'annuncio
Caratteristiche immobile
- Aria Condizionata:presente
- Bagni:1
- Locali:3
- Metri quadri:99
- Condizioni:ristrutturato
- Piano:1
- Box:1
- Riscaldamento:autonomo
- Terrazzo:sì
- Balcone:sì