Appartamento in vendita Via Cornini Malpeli , Fidenza
Centro120mq
5locali

RIF. 379788 - Vendesi Appartamento su due livelli con terrazza privata di 36 mq - Fidenza
Nel cuore di Fidenza, precisamente in via Cornini Malpeli, proponiamo in vendita una soluzione abitativa unica nel suo genere con ingresso indipendente e un ampio terrazzo privato di 36 mq. L’immobile si trova all’interno di un palazzo storico, completamente ristrutturato, che conserva il fascino originale, ma con finiture di pregio e una classe energetica A1.
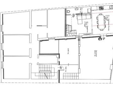
L’appartamento si sviluppa su due livelli e si compone di:
Primo piano: ingresso autonomo da un ampio terrazzo, cucina, sala da pranzo, soggiorno e bagno di servizio.
Secondo piano: tre camere da letto e due bagni finestrati.
Caratteristiche principali:
Finiture di alta qualità, ancora personalizzabili in base alle preferenze del futuro proprietario.
Classe energetica A1, garantendo il massimo comfort e il minimo consumo energetico.
Dotato di placche Bticino, videocitofono, caldaia a condensazione, riscaldamento a pavimento e predisposizione per condizionatori nelle camere da letto.
Perché scegliere questo appartamento:
Terrazzo privato ideale per godersi momenti di relax all’aperto in totale privacy.
Posizione strategica che unisce la tranquillità alla comodità di essere vicino ai principali servizi della città.
Finiture di pregio e la possibilità di personalizzare gli interni in base ai propri gusti.
Se cerchi una casa elegante, moderna e con uno spazio esterno esclusivo, questa è l’opportunità che fa per te. Non perdere la possibilità di vivere in un ambiente unico, ricco di comfort e a pochi passi dal centro di Fidenza! sfbc....
Aggiornato il 2 Ottobre 2025Scrivi qui le tue note private sull'annuncio
Caratteristiche immobile
- Aria Condizionata:presente
- Stato al Rogito:libero
- Bagni:3
- Locali:5
- Metri quadri:120
- Condizioni:abitabile
- Spese Cond. Mese:1
- Piano:1
- Riscaldamento:autonomo
- Cantina:sì
- Terrazzo:sì