Appartamento in vendita Cogoleto
Centro70mq
4locali

Nel cuore del centro storico di Cogoleto, a soli 30 metri dal lungomare e proprio di fronte alla casa di Cristoforo Colombo, proponiamo un appartamento d'epoca all'ultimo piano con mansarda sovrastante, luminoso e soleggiato, con vista aperta sulla via principale e sui giardini interni.
Caratteristiche principali:
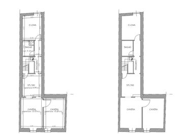
•Terzo ed ultimo piano
•Appartamento in ordine, composto da: ingresso, soggiorno doppio, camera da letto, cucina, bagno
•Mansarda sovrastante al grezzo, con ottime potenzialità: possibilità di ricavare una seconda camera da letto e un secondo bagnoi
•Vista aperta
•Luminoso e soleggiato
•No spese condominiali
Ideale per:
•Prima casa con possibilità di ampliamento
•Casa vacanze o B&B
Un'occasione unica per chi cerca un immobile nel cuore di Cogoleto, con carattere storico, vista aperta e vicinanza immediata al mare, da personalizzare a proprio gusto....
Aggiornato il 13 Aprile 2026Scrivi qui le tue note private sull'annuncio
Caratteristiche immobile
- Bagni:1
- Locali:4
- Metri quadri:70
- Condizioni:abitabile
- Piano:3
- Riscaldamento:autonomo