Appartamento in vendita Via F. Balicco 7, Martinengo
Centro98mq
5locali

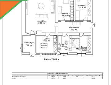
Piena proprietà di appartamento con ingresso al piano terra al civico 7 di ViaFrancesco Balicco all’interno dell’androne pedonale composta da disimpegno all’ingresso, cucina, bagno, camera da letto matrimoniale, corridoio, due camere da letto e soggiorno.
.
AFFARI all'ASTA
Offriamo assistenza qualificata a privati e investitori per l’acquisto sicuro e consapevole di immobili provenienti da aste giudiziarie, pre-asta, saldo e stralcio e compravendite immobiliari tradizionali.
L’attività viene svolta con professionalità, trasparenza e metodo, affiancando il Cliente in ogni fase del percorso, anche senza esperienza nel settore.
È possibile partecipare alle aste comodamente da remoto, senza alcun vincolo di distanza e senza necessità di presenza fisica.
Prenota ora la tua CONSULENZA GRATUITA!
- Analisi giuridica e procedurale dell’operazione immobiliare.
- Verifica catastale e urbanistica, esame della perizia del Tribunale e valutazione economica reale dell’immobile.
- Valutazione di eventuali opportunità in pre-asta e operazioni di saldo e stralcio
- Stima completa dei costi di aggiudicazione e degli eventuali interventi per sanare difformità o abusi.
- Supporto nella verifica della fattibilità di mutuo o soluzioni finanziarie.
- Eventuale richiesta di visita dell’immobile tramite il custode giudiziario delegato.
In caso di incarico, Affari all’Asta segue il Cliente fino alla conclusione dell’operazione, offrendo assistenza sia pre che post aggiudicazione.
Consulenza gratuita – compenso previsto solo in caso di effettivo avvio dell’operazione.
Affari all’Asta
Via Giuseppe Tartini, 12 – Milano....
Aggiornato il 21 Marzo 2026Scrivi qui le tue note private sull'annuncio
Caratteristiche immobile
- Stato al Rogito:occupato
- Bagni:1
- Locali:5
- Metri quadri:98
- Condizioni:abitabile
- Asta:sì
- Ascensore:sì