Appartamento in vendita Via Ponte del Giuscano , Milano
Figino, Quinto Romano79mq
2locali

L'appartamento V, situato nella prestigiosa Residenza Figino, è un duplex esclusivo disposto su due livelli, progettato per offrire spazio e comfort in un contesto elegante.
PER MAGGIORI DETTAGLI, PLANIMETRIE E AGGIORNAMENTI VISITA IL SITO UFFICIALE DEL PROGETTO: Contatta l'Agenzia con il servizio "Invia Richiesta" .IT
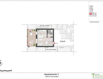
Piano Quarto: Zona giorno luminosa e funzionale
Al piano quarto, si apre un ampio soggiorno con cucina a vista, pensato per garantire luminosità e convivialità. L'ambiente si affaccia su un terrazzo panoramico, perfetto per ammirare suggestivi tramonti e godere di momenti di relax all'aria aperta.
Completa il piano un bagno completo e un antibagno spazioso, ideale per ospitare armadi aggiuntivi o per essere utilizzato come pratica zona di servizio.
Piano superiore: Spazio versatile e personalizzabile con accesso indipendente.
Una scala d'arredo conduce al piano superiore, dove si apre uno spazio di pari metratura rispetto all'appartamento sottostante luminoso e dotato di riscaldamento a pavimento. Questo ambiente offre la possibilità di creare un ampio locale versatile, adatto a soddisfare ogni esigenza personale. A completare il sottotetto, è presente anche una spaziosa lavanderia.
Completa la proprietà una cantina, ideale per riporre oggetti e attrezzature.
Disponibilità di box auto di diverse dimensioni adatti ad ogni esigenza.
Il progetto fa parte di un intervento più ampio: scopri l'intera iniziativa su: Contatta l'Agenzia con il servizio "Invia Richiesta" .IT
Caratteristiche e finiture
•Classe Energetica A4 – Risparmio garantito grazie a un sistema costruttivo ad alta efficienza
•Riscaldamento a pavimento – Comfort e distribuzione uniforme del calore
•Serramenti in PVC con vetro isolante e tapparelle motorizzate in alluminio coibentate– Ottimo isolamento termico e acustico
•Impianto di ventilazione controllata (VMC) – Migliore qualità dell'aria interna
•Predisposizione per impianto di raffrescamento
•Pavimenti in gres porcellanato di prima scelta
•Sanitari sospesi Ideal Standard serie TESI con rubinetteria Ceraplan
La Residenza Figino
La Residenza Figino è un complesso residenziale moderno e sostenibile, composto da due eleganti palazzine. Progettata per offrire il massimo comfort, la residenza è immersa in un contesto verde e tranquillo, senza rinunciare alla comodità dei servizi cittadini.
...
Aggiornato il 11 Marzo 2026Scrivi qui le tue note private sull'annuncio
Caratteristiche immobile
- Stato al Rogito:libero
- Bagni:2
- Locali:2
- Metri quadri:79
- Condizioni:abitabile
- Piano:4
- Anno di costruzione:2026
- Ascensore:sì
- Riscaldamento:centralizzato
- Cantina:sì
- Terrazzo:sì