Appartamento in vendita Via Giuseppe Mazzini 20, Milano
Centro, Duomo, Brera€ 3.900.000
330mq
10locali

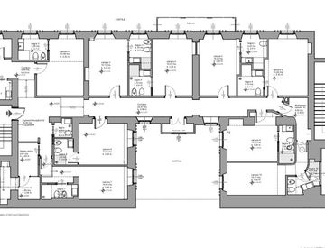
MM Duomo- Via Mazzini in prestigioso stabile ampio plurilocale di 330 mq commerciali e attualmente locato ad affittacamere hotel con rendita garantita al 4,5%. Prestigioso, ottime finiture.
Aggiornato il 1 Aprile 2026Scrivi qui le tue note private sull'annuncio
Caratteristiche immobile
- Aria Condizionata:presente
- Stato al Rogito:affittato
- Bagni:10
- Locali:10
- Metri quadri:330
- Condizioni:abitabile
- Spese Cond. Mese:300
- Piano:2
- Anno di costruzione:1900
- Ascensore:sì
- Riscaldamento:centralizzato
- Cantina:sì
- Balcone:sì
Esplora la zona dell'appartamento
Aiutaci a migliorare il servizio: se l'annuncio non è veritiero o l'immobile non è più disponibile, .
Contatta l'inserzionistaCodice annuncio: 52548685
Invia email
Codice: 52548685