Appartamento in vendita Viale Certosa 285, Milano
Cascina Merlata, Cimitero Maggiore, Viale Certosa66mq
3locali

TRILOCALE CON BALCONE
Ottimo investimento, pronto per essere messo a reddito come trilocale per condivisioni: cucina abitabile e due camere da letto.
LO STABILE
In Viale Certosa, in uno stabile tranquillo e riservato servito da ascensore e da verde condominiale, proponiamo al primo piano un'appartamento con balcone in buono stato e pronto per essere abitato.
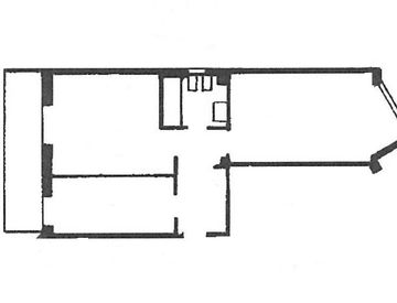
L'APPARTAMENTO
L'appartamento di 66 m², con doppia esposizione che garantisce luminosità durante tutto il giorno, è così composto:
- un'ampia cucina abitabile collegata da porta/finestra all'ampio balcone con affaccio interno sul verde condominiale;
- una camera matrimoniale collegata da porta/finestra all'ampio balcone con affaccio interno sul verde condominiale;
- ampio soggiorno luminoso;
- bagno finestrato.
Completa la proprietà un solaio.
Dotazioni: climatizzazione, doppi vetri, impianto di allarme.
LA ZONA
Collegamenti: tram (14), metropolitana (M1 Uruguay), passante ferroviario Milano Certosa.
Perfetto sia per chi cerca un'ambiente tranquillo, senza rinunciare alla comodità e al comfort di poter raggiungere facilmente il centro della città e vari servizi, sia per chi vuole investire in una zona che si sta ampiamente riqualificando....
Aggiornato il 12 Dicembre 2025Scrivi qui le tue note private sull'annuncio
Caratteristiche immobile
- Aria Condizionata:presente
- Stato al Rogito:libero
- Bagni:2
- Locali:3
- Metri quadri:66
- Condizioni:abitabile
- Spese Cond. Mese:220
- Piano:1
- Anno di costruzione:1950
- Soffitta:sì
- Ascensore:sì
- Riscaldamento:centralizzato
- Cantina:sì
- Giardino:comune
- Balcone:sì
Esplora la zona dell'appartamento
DOMUS PROGETTO MILANO SRL
Milano, LONDONIO 18
- Codice annuncio: 52691684