Appartamento in vendita Via Dante Alighieri , Cagliari
San Benedetto€ 295.000
80mq
3locali

Cagliari, nel contesto della centralissima Via Dante, disponiamo di 1 trivano di prossima costruzione, al 2° piano, in un contesto riservato.
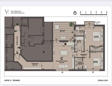
L' appartamento è composto da ampio soggiorno con zona cottura, disimpegno, TERRAZZA VIVIBILE, 1 ampia camera matrimoniale, compresa di BAGNO ESCLUSIVO E CABINA ARMADIO, una camera singola con CABINA ARMADIO, e un bagno padronale.
PRESENTE ASCENSORE
ALTE RIFINITURE PERSONALIZZABILI.
CLASSE ENERGETICA A++
CONSEGNA PRIMAVERA 2026 NO POSTO AUTO....
Aggiornato il 10 Dicembre 2025Scrivi qui le tue note private sull'annuncio
Caratteristiche immobile
- Stato al Rogito:libero
- Bagni:2
- Locali:3
- Metri quadri:80
- Condizioni:ristrutturato
- Piano:2
- Ascensore:sì
- Terrazzo:sì
Esplora la zona dell'appartamento
Aiutaci a migliorare il servizio: se l'annuncio non è veritiero o l'immobile non è più disponibile, .
Contatta l'inserzionistaCodice annuncio: 52447711 Rif: TERESA C. 3922523033
Altri appartamenti simili su Attico.it
Riferimento Imm: TERESA C. 3922523033
Codice: 52447711