Appartamento in vendita Via Luigi Galvani , Empoli
Centro95mq
5locali

Empoli zona cascine rif. E 25/076
interessantissimo appartamento di 95 mq. Circa su due livelli ( piano secondo e piano mansarda ) con ascensore riservato ai soli due appartamenti dl piano secondo, facente parte di ottima palazzina signorile, ben tenuta ed in perfette condizioni situato in zona ricercata e servitissima a due passi da centro, stazione, scuole, parco, supermercati, fi-pi-li ed ogni altro servizio
l'abitazione, con acceso a comune con sole altre tre unità abitative, è stata oggetto di opere di ristrutturazione e restayling in stile moderno nel 2018 e pertanto si presenta fresca e giovanile come nuova con ogni confort e cura del dettaglio con ampi spazi ed aperture che la rendono accogliente, ben vivibile e molto luminosa
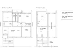
detto appartamento si compone al piano secondo da zona soggiorno, cucina abitabile con terrazzo, disimpegno, camare matrimoniale, bagno finestrato con box doccia, ripostiglio; dal soggiorno si raggiunge il piano mansarda dove troviamo un disimpegno, un'ampia camera matrimoniale con bagno privato e bella terrazza a tasca, oltre ad una cameretta ed un grande ripostiglio nel sottotetto coibentato
al piano terra nella corte tergale comune troviamo la comoda cantina doppia ideale per rimessaggio bici e stivare cose in genere
...
Aggiornato il 15 Aprile 2026Scrivi qui le tue note private sull'annuncio
Caratteristiche immobile
- Aria Condizionata:presente
- Bagni:2
- Locali:5
- Metri quadri:95
- Condizioni:ristrutturato
- Piano:2
- Anno di costruzione:1967
- Ascensore:sì
- Riscaldamento:autonomo
- Terrazzo:sì