Appartamento in vendita Via del Barco , Firenze
Firenze Nova, Novoli110mq
6locali

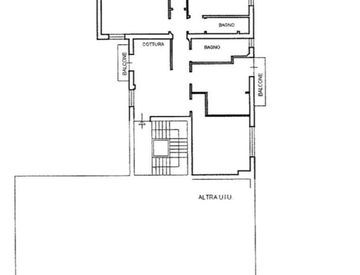
In palazzina anni '70, al quarto piano con ascensore, sei vani composto da ingresso su zona giorno con angolo cottura, quattro camere, ripostiglio, doppi servizi e due balconi.
In posizione strategica, all’interno di una palazzina degli anni ’70 dotata di ascensore, al quarto piano, appartamento di sei vani di ampia metratura di circa 110 mq così composto: ingresso sulla zona giorno con angolo cottura con accesso al primo balcone, quattro ampie camere di cui una con balcone, doppi servizi di cui uno finestrato e pratico ripostiglio.
L’immobile è dotato di infissi in vetro-legno e impianto di aria condizionata. L' appartamento viene venduto locato a quattro studenti con regolare contratto garantendo un’interessante e stabile redditività.
La proprietà costituisce una soluzione ideale per chi desidera un investimento solido in un contesto residenziale tranquillo, ben servito e a pochi passi dalla tramvia.
Contattaci subito al numero per fissare una visita....
Aggiornato il 20 Febbraio 2026Scrivi qui le tue note private sull'annuncio
Caratteristiche immobile
- Aria Condizionata:presente
- Stato al Rogito:occupato
- Bagni:2
- Locali:6
- Metri quadri:110
- Condizioni:abitabile
- Spese Cond. Mese:250
- Piano:4
- Anno di costruzione:1970
- Ascensore:sì
- Riscaldamento:centralizzato
- Balcone:sì