Appartamento in vendita Poggibonsi
€ 420.000
152mq
4locali

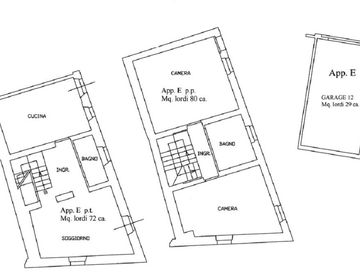
Nelle colline circostanti di Poggibonsi in caratteristico borghetto ristrutturato, bell'appartamento con giardino privato e ingresso indipendente. L’immobile è parte di un tipico casolare toscano in ottimo stato conservativo e si sviluppa su due piani per una superficie complessiva di 152 mq c. a. composto internamente al piano terreno da soggiorno, cucina abitabile e n. 1 bagno finestrato e al piano superiore da n. 2 camere da letto e n. 1 bagno...
Aggiornato il 1 Agosto 2025Scrivi qui le tue note private sull'annuncio
Caratteristiche immobile
- Stato al Rogito:libero
- Bagni:2
- Locali:4
- Metri quadri:152
- Condizioni:ristrutturato
- Piano:piano terra
- Box:1
- Giardino:privato
- MQ Box:29
Esplora la zona dell'appartamento
Aiutaci a migliorare il servizio: se l'annuncio non è veritiero o l'immobile non è più disponibile, .
Contatta l'inserzionistaCodice annuncio: 43775365 Rif: 1A/119
Altri appartamenti simili su Attico.it
Riferimento Imm: 1A/119
Codice: 43775365