Appartamento in vendita Via Giuseppe Missori , Verona
Borgo Trento, Pindemonte, Ponte Crencano75mq
3locali

QUALITY REAL ESTATE CONCESSIONARIA QUALITY STYLE PROPONE in vendita un elegante TRILOCALE situato in contesto condominiale signorile, comodo a tutti i servizi.
L’immobile si trova in zona BORGO TRENTO nelle immediate vicinanze dell'Ospedale.
L’appartamento verrà completamente ristrutturato con un’ottima redistribuzione degli spazi interni.
LA CONSEGNA AVERRA' A 6 MESI DALL'INIZIO DEI LAVORI.
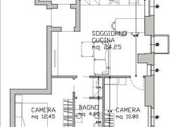
COMPOSIZIONE: L'immobile è composto da un soggiorno con cucina a vista dotato di balcone, 2 camere da letto, un bagno rifinito con materiali di pregio completamente arredato
L’ambiente è reso ancora più confortevole dalla presenza dell’aria condizionata con pompa di calore, mentre i serramenti sono dotati di avvolgibili elettrificati che permettono di gestire l’apertura e la chiusura con un solo tasto, garantendo praticità e sicurezza.
Siamo a disposizione a far visitare un immobile da noi ristrutturato per verificare il livello di ristrutturazione.
OPPORTUNITA' FISCALE possibilità di usufruire del bonus ristrutturazioni al 50% fino ad un massimale di €. 96.000 detraibile in 10 anni.
Un investimento di prestigio, ideale sia per chi desidera vivere Verona da protagonista sia per chi cerca un’opportunità immobiliare con forte rendimento futuro.
Contattaci per scoprire tutti i dettagli e riservare in anteprima la tua nuova casa nel cuore della città!
PREZZO APPARTAMENTO FINITO CHIAVI IN MANO: €. 335.000, 00
PREZZO DELLA CANTINA €. 5.000, 00 -
PREZZO garage nel medesimo fabbricato euro 25.000, 00....
Aggiornato il 14 Maggio 2026Scrivi qui le tue note private sull'annuncio
Caratteristiche immobile
- Aria Condizionata:presente
- Stato al Rogito:libero
- Bagni:1
- Locali:3
- Metri quadri:75
- Condizioni:ristrutturato
- Spese Cond. Mese:70
- Piano:2
- Anno di costruzione:1968
- Box:1
- Arredato:completamente arredato
- Ascensore:sì
- Riscaldamento:centralizzato
- Cantina:sì
- Balcone:sì
- MQ Box:23