Casa indipendente in vendita Via Enrico Berlinguer , Agliana
Castelletto200mq
6locali

* Agliana Casa Indipendente in Vendita: Rif. 424
Scopri questa affascinante casa indipendente, un vero gioiello nel centro della città. Con un ampio giardino di 350 mq sul retro e un giardino frontale di 120 mq, questa proprietà offre uno spazio esterno perfetto per rilassarsi Situata in una posizione centrale, è vicina a tutti i servizi, rendendo la vita quotidiana comoda e accessibile.
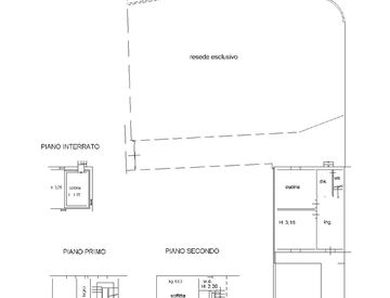
Al piano terra, l'ampio ingresso conduce a un luminoso soggiorno e a una cucina abitabile, ideale per cene in famiglia. Inoltre, c'è un ripostiglio con la possibilità di ricavare un bagno, offrendo ulteriori opportunità di personalizzazione. Al primo piano, troverai una camera matrimoniale e due camere medie, tutte spaziose e ben illuminate, oltre a un bagno funzionale, ed una lavanderia
La soffitta praticabile offre ulteriore spazio per riporre oggetti o trasformarla in un'area relax. Con un sistema di riscaldamento a gas naturale, la casa è efficiente e confortevole in ogni stagione. Non perdere l'occasione di visitare questa casa che combina spazio, comfort e una posizione invidiabile. Prezzo richiesto: 325.000 euro. Contatta per maggiori informazioni! Agenzia Immobiliare BG via Maria Callas 25 Agliana /....
Aggiornato il 21 Aprile 2026Scrivi qui le tue note private sull'annuncio
Caratteristiche immobile
- Aria Condizionata:assente
- Stato al Rogito:libero
- Bagni:2
- Locali:6
- Metri quadri:200
- Condizioni:abitabile
- Anno di costruzione:1970
- Totale piani:2
- Soffitta:sì
- Posti Auto:3
- Riscaldamento:autonomo
- Giardino:privato
- MQ Giardino:420
- Terrazzo:sì