Negozio/Locale commerciale in vendita Piazza dei Signori , Padova
Centro Storico€ 480.000
100mq

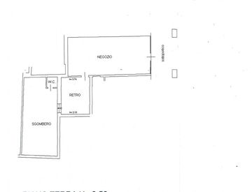
centro storico di padova adiacente piazze su zona di forte passaggio vendesi negozio con retro e magazzino con ottima rendita 9-10%.
Aggiornato il 1 Aprile 2026Scrivi qui le tue note private sull'annuncio
Caratteristiche immobile
- Aria Condizionata:presente
- Stato al Rogito:occupato
- Metri quadri:100
- Condizioni:abitabile
- Spese Cond. Mese:1
- Riscaldamento:presente
Esplora la zona dell'immobile
Aiutaci a migliorare il servizio: se l'annuncio non è veritiero o l'immobile non è più disponibile, .
Contatta l'inserzionistaCodice annuncio: 52824766 Rif: s2352
Riferimento Imm: s2352
Codice: 52824766