Villa in vendita Via Trieste , San Giuliano Milanese
Centro300mq
5locali

Villa esclusiva con piscina e giardino privato
In contesto esclusivo e riservato di sole ville di lusso, nel cuore di San Giuliano, in Via Trieste, proponiamo in vendita una splendida villa indipendente di circa 200 mq, unica nel complesso grazie alla presenza della piscina privata, elemento raro e di grande pregio che la rende una soluzione davvero esclusiva.
La proprietà è circondata da oltre 100 mq di giardino privato, con spazi in parte verdi e in parte terrazzati lungo tutto il perimetro della casa, pensati per offrire privacy, comfort e massima vivibilità in ogni stagione. Sul retro è presente una grande area coperta in stile gazebo/veranda, perfetta per pranzi e cene all’aperto, ideale per momenti conviviali e grigliate grazie alla comoda zona barbecue.
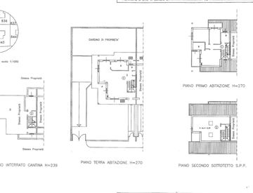
La villa si sviluppa su più livelli. Al piano terra troviamo un ampio salone doppio, estremamente luminoso e accogliente, una cucina separata abitabile, un bagno di servizio e un pratico ripostiglio.
Al primo piano si sviluppa la zona notte, composta da una camera padronale con bagno privato dotato di doccia, cabina armadio e terrazzino privato. Completano il piano uno studio con balcone privato, una seconda stanza versatile ideale come camera o studio e un ulteriore bagno con vasca.
Il secondo piano ospita una stanza con bagno privato, perfetta come camera ospiti o ambiente indipendente.
Al piano seminterrato troviamo una spaziosa lavanderia, una grande taverna suddivisa in due ambienti, con relativo sgabuzzino, e un ampio box auto in grado di ospitare fino a tre vetture, oltre ad ulteriori posti auto coperti nella zona antistante.
La villa è dotata di riscaldamento autonomo con caldaia e sistema di raffrescamento tramite split al primo piano, ideale per la zona notte. Le spese condominiali sono particolarmente contenute, pari a soli 500 euro l’anno, in quanto riferite esclusivamente alla luce condominiale, mentre il resto è completamente autonomo.
Una soluzione unica per chi desidera vivere in un contesto di prestigio, con totale privacy, ampi spazi e il valore aggiunto di una piscina privata esclusiva.
La presente pubblicità è da considerarsi puramente indicativa e non costituisce vincolo contrattuale.
Se fosse interessato ad una valutazione GRATUITA e SENZA IMPEGNO del Suo immobile, siamo a Sua completa disposizione!
Disponibili per ulteriori informazioni e visite. Affiliato ICONACASA San Donato Milanese Ogni Affiliato è un’impresa autonoma.
Per avere ulteriori informazioni potete contattarci senza impegno al numero Sara....
Aggiornato il 14 Aprile 2026Scrivi qui le tue note private sull'annuncio
Caratteristiche immobile
- Aria Condizionata:presente
- Stato al Rogito:libero
- Bagni:4
- Locali:5
- Metri quadri:300
- Condizioni:abitabile
- Spese Cond. Mese:8
- Piscina:sì
- Totale piani:3
- Box:2
- Posti Auto:3
- Riscaldamento:autonomo
- Cantina:sì
- Giardino:privato
- Terrazzo:sì
- Balcone:sì