Villetta a schiera in vendita Piazza Umberto I 23, Zero Branco
Centro110mq
5locali

Schiera di testa di prossima costruzione, a pochi metri dal centro di Zero Branco. Questa proprietà, caratterizzata da un'ottima classe energetica A4, offre un perfetto equilibrio tra comfort e modernità.
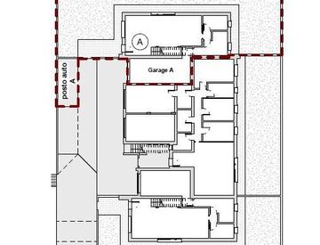
L'immobile si sviluppa su due livelli, al piano terra troviamo una zona soggiorno con angolo cottura di circa 40mq, un bagno un vano tecnico e un ampio garage comunicante di circa 24mq, salendo al piano primo un ampio disimpegno ci conduce nella zona notte composta da tre camere da letto tra cui una matrimoniale con cabina armadio e un bagno ben rifinito.
All'esterno, un ampio giardino di circa 200 mq offre uno spazio ideale per godere di momenti di relax all'aria aperta, organizzare cene con amici o semplicemente per far giocare i bambini in un ambiente sicuro e riservato.
Questa schiera rappresenta un'opportunità unica per chi desidera vivere in una zona tranquilla ma ben collegata, con tutti i servizi a portata di mano.
Possibilità di personalizzare le finiture oltra alle già ottime finiture previste nel capitolato....
Aggiornato il 17 Marzo 2026Scrivi qui le tue note private sull'annuncio
Caratteristiche immobile
- Stato al Rogito:libero
- Bagni:2
- Locali:5
- Metri quadri:110
- Condizioni:nuovo
- Piano:piano terra
- Anno di costruzione:2026
- Totale piani:2
- Box:1
- Riscaldamento:autonomo
- Giardino:privato
- MQ Box:25